Logga in
Välkommen till Widerlöv. Logga in för att fortsätta.
Det tar bara några sekunder.
- Starta BankID-appen på din mobil eller surfplatta
- Klicka på QR-koden
- Skanna QR-koden nedan, med BankID-appen
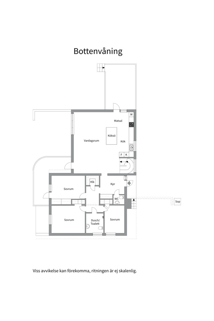
Välkommen till Ejdervägen 12, ett stort och charmigt hus i populära Saltsjö-Duvnäs. Här bor du med ett fantastiskt läge, i ett hus som kombinerar tidstypisk arkitektur med praktisk planlösning och trivsam atmosfär. Här bor du med ett läge som kombinerar stadens närhet med villalivets alla fördelar – i ett hem som bjuder på riktiga sällskapsytor, många sovrum, eldstad, egen inomhuspool, flertalet uteplatser, och en solig, insynsskyddad hörntomt.
Lev ut era drömmar och bo nära havet, sjön, Erstaviks naturreservat och Långsjöns naturreservat. Mindre än 10 km till Stockholm City. Här bor ni riktigt centralt med skola, idrott, affärer, restauranger och kommunikationer precis runt hörnet.
- Kort gångavstånd till skola och förskola
- Nära tennisbanorna, havet och Ringparken
- Härlig granngemenskap med aktiv villaförening
- Mycket bra kommunikationer
Fastigheten ligger med ett mycket centralt läge i området. Nära till Duvnäsviken med båtplatser, nära till Saltsjöbanans tågstation och nära till Ektorp Centrum. Duvnäs skola och Saltängens skola ligger båda på gångavstånd från huset, busshållplats med buss 410 ligger 2 minuter bort. Långsjön ligger på gångavstånd. Fantastisk sjö med varma bad på sommaren och skridskoåkning på vintern. Intill finns utegym och Saltsjö-Duvnäs tennisklubb har sin hall här. En annan populär aktivitet är områdets seglarklubb; Måsungeklubben, där både små och stora lär sig segla. Tre fotbollsplaner varav den ena i direkt närhet. Tennisbanorna i Gamla Allén ligger några minuter från huset. I Ringparkstugan ordnas diverse trevliga aktiviteter året runt.
Uteplats och tomt
Huset ligger på en högt belägen och insynsskyddad hörntomt, omgiven av lummig grönska. Här finns flertalet uteplatser – för frukost i solen, långa middagar under pergolan eller stilla kvällar med utsikt mot grönskan. Trädgården är uppvuxen, välskött och erbjuder både odlingsmöjligheter, lekytor och privatliv.
Läget
Detta är Duvnäs när det är som allra bäst. Ett otroligt lugnt och naturnära läge – men ändå med gångavstånd till affär, skola, förskola, bussar och vackra promenadstråk vid både sjö och hav. Du tar dig till Södermalm på 20 minuter med kollektivtrafik – samtidigt som du lever i en trygg, grön och familjevänlig miljö.
Kort sagt
Stort hus i mycket gott skick
Många sovrum och flexibla ytor
Vardagsrum med öppen spis
Inomhuspool
Flera uteplatser, balkong och terrass
Hörntomt
Mycket centralt i Duvnäs – nära allt
Ett hem att växa i – eller stanna i för gott
Du kanske går i försäljningstankar, eller så funderar du på vad din bostad är värd. Oavsett om du har planer på att sälja din bostad eller bara är nyfiken på värdet kan du ta hjälp av våra mäklare. Vi värderar ditt hus, din lägenhet, sommarstuga eller fastighet. Antingen hemma hos dig eller digitalt. Fyll i formuläret så kontaktar vi dig för ett förutsättningslöst möte.
Fyll i formuläretDu kanske går i försäljningstankar, eller så funderar du på vad din bostad är värd. Oavsett om du har planer på att sälja din bostad eller bara är nyfiken på värdet kan du ta hjälp av våra mäklare. Vi värderar ditt hus, din lägenhet, sommarstuga eller fastighet. Antingen hemma hos dig eller digitalt. Klicka på länken och fyll i formuläret så kontaktar vi dig för ett förutsättningslöst möte.
Värdering av din bostad