Logga in
Välkommen till Widerlöv. Logga in för att fortsätta.
Det tar bara några sekunder.
- Starta BankID-appen på din mobil eller surfplatta
- Klicka på QR-koden
- Skanna QR-koden nedan, med BankID-appen
Varmt välkomna till detta hemtrevliga radhus med fantastiskt solläge runt barnvänliga Valsparken!
På Dansbanevägen 5 bor du i ett familjevänligt kvarter och område med närhet till både förskolor, skolor, lekplatser och naturen runt hörnet. Väl genomtänkta materialval samt stora fönster med gott om ljusinsläpp skapar en trivsam känsla som återkommer i hela huset. Entréplanet erbjuder en rymlig hall med gott om förvaring och sociala ytor, perfekta för samvaro med familj och vänner. På övervåningen finns fyra väl tilltagna sovrum, där familjen kan leka och koppla av.
Framför huset finns en stenbelagd uppfart med plats för både cyklar och bil, samt en träbelagd grönskande uteplats med sol från morgon till lunch. Från vardagsrummet når ni den större träbelagda uteplatsen, perfekt för middagar och loungemys, med sol från lunch till sen kväll. Här finns också ett praktiskt förråd. Baksidan erbjuder även en plan gräsmatta med en trivsam rabatt och odlingar av bär och rabarber.
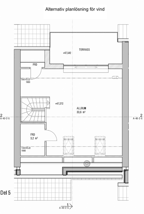
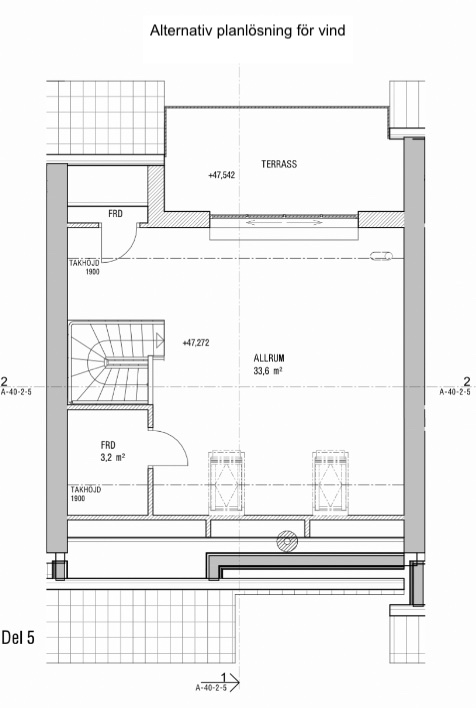
Radhuset har en generöst tilltagen oisolerad vind med gott om plats till förvaring. Fastigheten har ett beviljat bygglov som innebär möjlighet till ytterligare ca. 35 kvm boyta samt en härlig takterass med kvällssol. Bilder på planlösning samt ritningar finns att tillgå.
- Nära till såväl kommunikation som service
- Skolor samt förskolor i närområdet
- Sol på framsidan på morgon och förmiddagen och från lunch till kvällen på baksidan
- Skyddad och trevlig baksida åt väster
- Genomgående toppskick och generösa ljusinsläpp
- Populärt område i skärgårdsmiljö
- Ett stenkast från gym, restaurang Bruket, Kennys Gelato, bageri/café och närlivs
- Småbåtshamn med ångbåtsbrygga, badplatser samt gångstråk längs vattnet mot Södra Lännersta och Boo Gård
Du kanske går i försäljningstankar, eller så funderar du på vad din bostad är värd. Oavsett om du har planer på att sälja din bostad eller bara är nyfiken på värdet kan du ta hjälp av våra mäklare. Vi värderar ditt hus, din lägenhet, sommarstuga eller fastighet. Antingen hemma hos dig eller digitalt. Fyll i formuläret så kontaktar vi dig för ett förutsättningslöst möte.
Fyll i formuläretDu kanske går i försäljningstankar, eller så funderar du på vad din bostad är värd. Oavsett om du har planer på att sälja din bostad eller bara är nyfiken på värdet kan du ta hjälp av våra mäklare. Vi värderar ditt hus, din lägenhet, sommarstuga eller fastighet. Antingen hemma hos dig eller digitalt. Klicka på länken och fyll i formuläret så kontaktar vi dig för ett förutsättningslöst möte.
Värdering av din bostad