Kommande bostad

Danmark, Uppsala

Danmarks-Bärby 34

Danmark, Uppsala

Danmarks-Bärby 34

price tag icon Pris
6 300 000 kr Eller enligt ök
Bostadstyp
Friliggande villa
rooms and are icon Antal rum
5 rum
area icon Boarea
150 m2
area icon Biarea
15 m2
area icon Tomtarea
1 013 m2
calendar icon Byggnadsår
1926 och 2012
Danmarks-Bärby 34

Charmig villa strax utanför Uppsala med möjlig uthyrningsdel!

Kommande försäljning, vänliga kontakta ansvarig mäklare för mer info ev möjlighet till förhandsvisning!

Välkommen till en unik möjlighet – ett charmigt och karaktärsfullt hem med generösa möjligheter för dig som vill kombinera det bästa av två världar: ett harmoniskt privatboende och plats för verksamhet eller uthyrning. Här kan du förverkliga drömmen om att driva eget företag hemifrån, hyra ut delar av fastigheten eller skapa en idealisk lösning för flera generationer under samma tak.

Fastigheten genomgick en omfattande om- och tillbyggnad som färdigställdes 2012, där modern funktion och stilfulla materialval sömlöst möter 1920-talets tidstypiska charm. Den gedigna byggnaden bjuder på en varm och inbjudande känsla med smarta lösningar för både boende och arbete.

Här finns ett rymligt dubbelgarage och en separat uthyrningsdel med egen ingång – perfekt för extra inkomst eller som kontor, ateljé eller studio.

Det lantliga läget, bara ett stenkast från stadens puls, skapar en sällsynt kombination av lugn och närhet. Med endast några kilometer in till Uppsala City, smidigt pendlingsavstånd till E4:an och en busshållplats bara 200 meter bort, bor du bekvämt och strategiskt oavsett livsstil.

Intresseanmälan
Michael Melin
Ansvarig mäklare

Michael Melin

Fastighetsmäklare, Boka tid i min kalender Läs mer om Michael

Bostad

Ekonomi

Dokument och länkar

previous slide
next slide
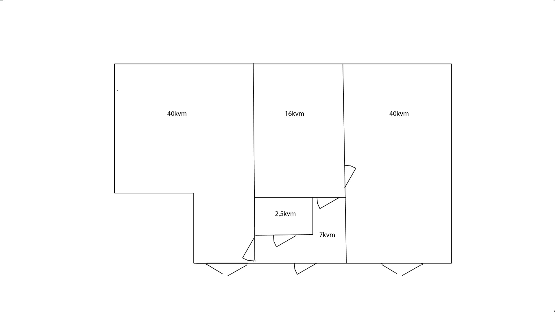
Planlösning från Danmarks-Bärby 34, Kommande i Danmark, Uppsala
Planlösning från Danmarks-Bärby 34, Kommande i Danmark, Uppsala
Intresseanmälan

Anmäl dig här

Du som är intresserad av den här bostaden får gärna lämna dina kontaktuppgifter här. Då kan jag höra av mig till dig med uppdateringar kring bostaden, och du riskerar inte att missa nåt.

Räkna ut boendekostnad

bg

Ska vi ses hemma hos dig?

Nya tider skapar nya möjligheter. Du kanske går i försäljningstankar, eller så funderar du på vad din bostad är värd. Oavsett om du har planer på att sälja din bostad eller bara är nyfiken på värdet kan du ta hjälp av våra mäklare. Vi värderar ditt hus, din lägenhet, sommarstuga eller fastighet. Antingen hemma hos dig eller digitalt. Klicka på länken och fyll i formuläret så kontaktar vi dig för ett förutsättningslöst möte.

Värdering av din bostad