Logga in
Välkommen till Widerlöv. Logga in för att fortsätta.
Det tar bara några sekunder.
- Starta BankID-appen på din mobil eller surfplatta
- Klicka på QR-koden
- Skanna QR-koden nedan, med BankID-appen
Bostadsrätt med radhuskänsla i två plan med unik planlösning, perfekt planerad för en familj. Rymlig uteplats på framsidan och en stor balkong i härligt österläge. Äntligen är denna sällsynta lägenhetstyp till salu!
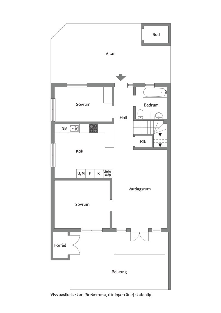
Varmt välkomna till detta välplanerade och renoverade bostadsrättsradhus i barnvänliga Östra Orminge! Här bor du avskilt i ett gavelläge nära såväl naturen som kommunikationer, skola och butiker. Huset ligger bra till på gården med utsikt över innergård och rofylld skogsdunge på baksidan. Bostaden har under de senaste åren renoverats till att vara i det skick det är idag. Här finner ni tre rymliga sovrum, kök med mycket arbetsyta och vackra materialval, stora sociala ytor både ute och inne med plats att umgås med familj och vänner.
- Garanterad en parkeringsplats.
- Motorvägsbussar mot slussen ett stenkast från bostaden, 15 min in.
ENTRÉPLAN
Hall
Rymlig hall med plats för klädavhängning och skor. Trevligt ljusinsläpp från fönster invid dörr.
Kök med matplats
Extremt påkostat premium kök från Hth med mörkgråa luckor, påkostad bänkskiva i kompositsten med extra bänkdjup och halv-ö med brolösning och sittplats. Matplats med platsbyggd sittplats med förvaring. Blandare och ho i mörkgrå komposit från blanco + Quooker (kran med kokande vatten).
Sidebyside kyl/frys från Samsung. Stor ugn med micro och pyrolys rengöringsprogram och combi ugn med ånga från exklusiva siemens Studioline serien. Stor Induktions häll med flex zoner. Integrerat diskmaskin med belysning, flexibel inredning och zerolith torksystem. Båda från Neff.
Vardagsrum
Ljust och rymligt vardagsrum med stora dubbla balkongdörrar som släpper in bra med ljus. Plats för stor soffgrupp och annat möblemang. Parkettgolv, målade väggar. Från vardagsrummet når man den härliga balkongen med utsikt över grönområde.
Sovrum 2-3
Generösa sovrum med plats för säng, gott om klädförvaring i platsbyggda garderober och skrivbord.
Badrum
Badrummet är nymålat i en ljusgrå kulör.
Ny hth kommod med marmor bänk och handfat i vit. Spegelskåp med belysning.
Badkar med tassar och dusch.
ÖVRE PLAN
Allrum
Stor social yta med plats för soffmöbel och kontorshörna, härligt ljusinsläpp från takfönster.
Här finns möjlighet till fler sovrum - se alternativ planlösning
Master bedroom
Stort sovrum med plats för dubbelsäng och klädförvaring i kattvinden på ett smart sätt.
Uteförråd
Till bostaden hör även två förråd.
Bostaden har ett genomgående toppfint skick med plankgolv på nedervåning och målade väggar. På övervåningen ligger laminat i samma stil.
Bostaden är enligt säljaren 98kvm och enligt föreningens förteckning 74kvm.
Nya tider skapar nya möjligheter. Du kanske går i försäljningstankar, eller så funderar du på vad din bostad är värd. Oavsett om du har planer på att sälja din bostad eller bara är nyfiken på värdet kan du ta hjälp av våra mäklare. Vi värderar ditt hus, din lägenhet, sommarstuga eller fastighet. Antingen hemma hos dig eller digitalt. Fyll i formuläret så kontaktar vi dig för ett förutsättningslöst möte.
Fyll i formuläretNya tider skapar nya möjligheter. Du kanske går i försäljningstankar, eller så funderar du på vad din bostad är värd. Oavsett om du har planer på att sälja din bostad eller bara är nyfiken på värdet kan du ta hjälp av våra mäklare. Vi värderar ditt hus, din lägenhet, sommarstuga eller fastighet. Antingen hemma hos dig eller digitalt. Klicka på länken och fyll i formuläret så kontaktar vi dig för ett förutsättningslöst möte.
Värdering av din bostad