Rumsbeskrivningar
— ENTRÉPLAN —
-
Entré/Hall
Välkomnande farstu leder in till hall. Välkomnande vy över stora delar av entréplanet med god avhängningsyta i hatthylla. Väggar målade i nyans caffe latte och klinkergolv av terracotta med elburen golvvärme som övergår i vitsåpat trägolv.
Tvättutrymme
Förvaring i vit skåpinredning, arbetsbänk av ljusgrå laminat, hatthylla, tvättho, groventré och tvättpelare med tvättmaskin (Bosch) och torktumlare (Bosch). Vitmålad glasfiberväv och klinkergolv av turkos nyans med elburen golvvärme.
Badrum/Dusch/WC
Badkar med tassar och vacker blandare, kommod, duschkabin, wc, skåp för förvaring och handdukshängare. Passage till potentiell bastu som idag nyttjas som verkstad/förråd. Helkaklade väggar av ljus terracotta upptill och mörkare nyans nedtill med elburen golvvärme.
Allrum/Bibliotek
Härlig sällskapsyta invid vacker kakelugn med glaslucka som bjuder på skön värme under kallare årstider. Blommönstrad tapet på grön botten och gediget trägolv.
Klädkammare
Väggfast inredning för både hängande och vikta kläder. Vitmålade väggar och ljust laminatgolv.
Kök
Skåpinredning i mörkgrå nyans med profilerade luckor och belysta vitrindelar. Fina arbetsytor, fin köksö arbetsbänkar av sten med nedsänkt dubbelho. Maskinell utrustning såsom kyl och frys i fullhöjd (Samsung), integrerad diskmaskin i ergonomisk höjd (Electrolux), inbyggnadsugn (Electrolux), kombinerad inbyggnadsugn/micro (Electrolux), spisfläkt och extra bred induktionshäll (Electrolux). Vacker vedspis (Husqvarna) som komplement till matlagning eller bara skön värme. Vitmålad träpanel i tak, vitmålad bröstpanel med mörkblått upptill och gediget trägolv.
Matsal
Fönsterklädda väggar med utgång till husets baksida. Plats för rejält matbord och många middagsgäster. Vitmålad träpanel, gråmålad bröstpanel med mönstrad tapet upptill och gediget trägolv.
Arbetsrum/Sovrum 1
Stort rum med plats för två rejäla skrivbord om så önskas och kan likväl nyttjas som ”master bedroom”. Dubbla fönster, rutigt tapet som bonar in och gediget trägolv som vitsåpats.
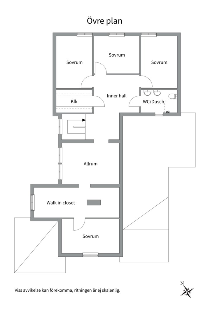
— ÖVRE PLAN —
-
Innerhall
Möter upp på övre plan och ligger i anslutning till merparten av rummen på övre plan. Snedtak, vindslucka, väggar målade i beige nyans och gediget trägolv.
Dusch/WC
Duschhörna med vikbara dörrar av klarglas, två kommoder, öppningsbart fönster, elburen handdukstork och dubbla, spegelklädda badrumsskåp. Helklade väggar i vitmelerad nyans med blå dekor och blått klinkergolv med elburen golvvärme.
Sovrum 2
Löper något i vinkel med plats för bred samt samt ytterligare möblemang. Snedtak, målade väggar i ljusgrå nyans och gediget trägolv.
Sovrum 3
Plats för enkelsäng samt ytterligare möblemang. Väggfast inredning i vitt för både hängande och vikta kläder. Väggar målade i ljusgrå nyans och gediget trägolv.
Sovrum 4
Plats för säng samt ytterligare möblemang. Väggar målade i bruten vit nyans och gediget trägolv som vitsåpats.
Klädkammare 2
Väggfast inredning för både hängande och vikta kläder. Snedtak, vitmålade väggar och gediget trägolv som vitsåpats.
Tv-rum/Allrum
Perfekt tv-rum på övre plan då det rymmer rejäl soffgrupp. Snedtak, mönstrad tapet och gediget trägolv.
Walk-in-closet
Viss inredning för hängande och vikta kläder. Vitmålade väggar och gediget trägolv.
Sovrum 5
Löper i vinkel med gott om plats för bred säng samt ytterligare möblemang. Förvaring i platsbyggd garderob. Snedtak med synliga takbjälkar, vitmålade väggar med grå/vitmönstrad fond och gediget trägolv.
Skafferi/Förråd
Svalare utrymme med väggfasta hyllplan och frysbox (Siemens). Vitmålade väggar och ljust laminatgolv.
Ägandeinformation
Fastighetsbeteckning Uppsala Hallkved 1:44. Upplåtelseform: Friköpt.
Storlek
9 rum och kök, varav 5 sovrum.
Boarea: 208 kvm. Areakälla/kommentar: Areauppgifter enligt uppmätning.
Tomt
Framsidan välkomnar med gräsmattor och grusgång mot farstukvisten, vackert inramad av buskar och naturliga nivåskillnader. På baksidan finns en plattsatt uteplats, en mindre gräsyta samt en kuperad slänt med lövträd. Tomten erbjuder även flertal fruktträd med äpplen, päron, plommon, bigarråer, krikon och ett flertal odlingslådor för självhushåll med egna grönsaker. Den lättåtkomliga jordkällaren med hyllplan blir perfekt sval förvaring av allt från mat till övervintrande blommor. Den generösa gårdsplanen erbjuder gott om plats för parkering, släp och större fordon. Här finns även ridbana om 20 × 60 m med belysning och staket, hästhagar, gödselplatta samt en egen damm. Tomtarea: 18 244 kvm.
Bilplats
Gott om parkeringsmöjligheter på den grusade gårdsplanen, här ryms även större fordon såsom hästtransport, husbil och dylikt. Elbilsladdare är installerad och ingår i köp. Vagnslidret används gärna som garage.
Byggnadstyp och konstruktion
Byggår: 1909/2004.
Friliggande villa. 1 ½ plan. Besiktigad.
Fasad: Stående träpanel.
Stomme: Trä.
Fönster: 2-glas kopplade samt isolerglas.
Bjälklag: Trä.
Utvändigt plåtarbete: Målad plåt.
Grundläggning: Torpargrund med avfuktare.
Tak: Sadeltak med betongpannor.
Ventilation: Självdrag samt mekanisk ventilation (i nyare del av hus).
Renoveringar
Föregående ägare;
2004: Tillbyggnad bad/dusch entréplan och övre plan.
2008: Tillbyggnad stall.
Nuvarande ägare;
2014: Plantering häck och fruktträd
2015: Renovering ridbana 50 ton sand, byte av vattenpump i pumphus, installation industritvättmaskin (wascator) i stall, installation sorptionsavfuktare i krypgrund, tapetsering och målning i hela bostadshuset invändigt. Installation av avfuktare och uppsättande av referensbrädor (ingen mögelpåväxt i dagsläget på referensbrädor).
2016: Uppsättande av stuprör och hängrännor till stall och utebyggnader, renovering hästhagar med stolpe och tråd, byte av vindskivor och vattenbrädor bostadshus inklusive målning, målning stall och utebyggnader, byggnation av hyllor och lådor i foderrum och vagnslider, byggnation av skrittmaskin.
2017: Byte av el i stall och utebyggnader enligt LF krav, Installation ny luft/luft-pump till bostadshus, renovering tvättrum målning, hyllor, skåp och bänk, ny torktumlare
2018: Upprättande av nytt reningsverk, dragning och inkoppling av fiber till bredband, byggnation av skrittmaskin, pattsättning uteplats, plattsättning foderrum
2019: Upprättande av solanläggning (161 solpaneler, 43.5 KW), byte av huvudsäkring med tillkommande eldragningar, helrenovering nytt kök och matrum inklusive målning, tapetsering, golvslipning och elementinstallation, renovering skafferi hyllsystem och målning
2020: Grävning av ny stenkista till stall, byggnation av grösaksodlingslåda
2021: Installation laddstation till el-bil
2022: Byggnation av tomatodlingslåda, eldragning och säkringsbox ekonomibyggnader
2024: Påfyllnad 45 ton sand ridbana, installation av 24 KWh batterier till fastigheten
2025: installation ny tvättmaskin, grusning ytor 50 ton 8/16-singel, målning stall invändigt, byggnation tomatodlingslåda, installation Verisure larm
Uppvärmning och energiförbrukning
Uppvärmning: Direktverkande el, solceller, luftvärmepump och eldstäder
Energideklaration Utförd 20 februari 2026. Energiklass A på en skala från A till G.
TV och bredband
Bredband: Idag nyttjas fiber.
Vatten/avlopp
Enskilt vatten; Borrad brunn (vattenprov från år -21 finns), Enskilt avlopp; Bioreningsverk (Alnarp cleanwater)
Övrigt om byggnad
Murad skorsten
Övriga byggnader/utrymmen
STALL (ca 7x18 m + 5x10 m, tot: 288 kvm)
Mycket bra skick; äldre delen renoverades och byggdes till 2006 efter gällande norm med tre lager gips, ventilation etc. Sju boxar om ca 3x4 meter med kompositväggar, galleröverdel och skjutdörrar. De tre boxarna i äldre stalldelen har varsin dörr in i stallgången/boxen. De fyra boxarna i nya delen har en 3 m bred och 18 m lång stallgång, vilket gynnar arbete med hästen. Innanför porten i den nya delen finns spolplatta med avlopp och varmvatten för smidig rengöring av hästen. I slutet av stallgången finner ni en stor, fin sadelkammare med vatten och ett separat torkrum för täcken samt tvättmaskin. Bra utrymme för hö i markplan samt ett foderrum med direktanslutning till fodersilo via skruv.
UTHUS 1 - Timrad byggnad om ca 27 kvm med betonggolv och takpannor. Innehållandes tre rum varav ett större.
UTHUS 2 - Träbyggnad om ca 30 kvm med betonggolv och plåttak. Innehållandes två "ute-boxar" samt oisolerad förrådsdel.
Planbestämmelser
Planbestämmelser: Vattenskyddsområde (2000-12-29)