Logga in
Välkommen till Widerlöv. Logga in för att fortsätta.
Det tar bara några sekunder.
- Starta BankID-appen på din mobil eller surfplatta
- Klicka på QR-koden
- Skanna QR-koden nedan, med BankID-appen
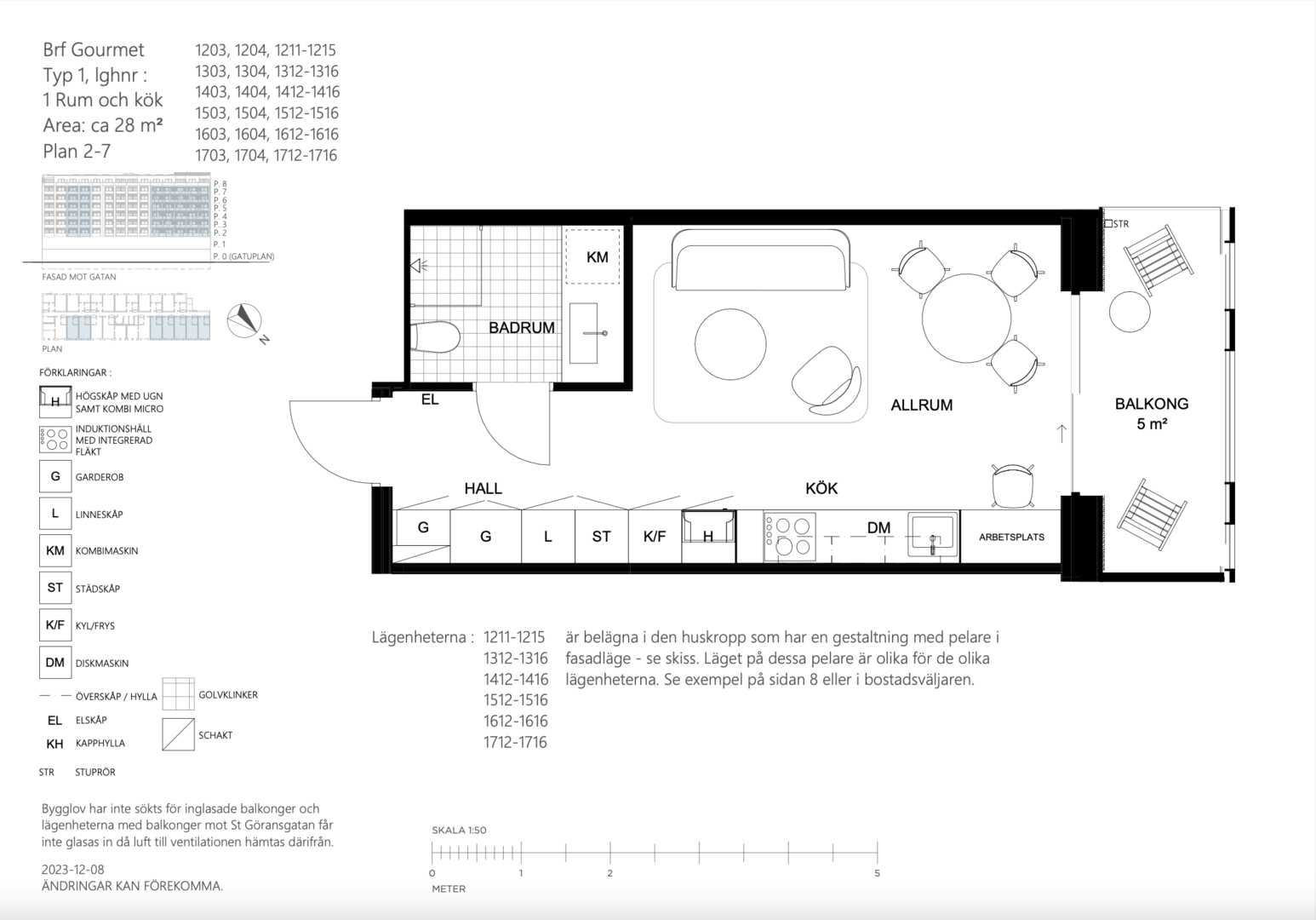
Välkommen till denna fantastiska etta på 28 kvm – en perfekt planerad bostad för dig som söker ett stiligt, funktionellt och hållbart boende. Lägenheten är belägen i Brf Gourmet, ett unikt boende i hjärtat av Kungsholmen, där hållbarhet och modern design möts. Här möts du av en ljus och luftig atmosfär där varje detalj har valts med omsorg för att skapa en harmonisk och inbjudande miljö. Lägenheten har ett enhetligt parkettgolvet i ek som löper genom hela bostaden och vackra vitlaserade träväggar, vilket ger ett ljust och stilrent intryck. Här flödar ljuset in genom stora fönster från tak till golv, vilket gör hela lägenheten ljus och välkomnande.
Bostaden erbjuder en välplanerad och funktionell layout med bra förvaringsmöjligheter. Direkt vid entrén finns garderober i hallen för effektiv förvaring. Allrummet bildar en öppen och social yta, här finns plats för både matbord och säng, vilket gör att utrymmet kan anpassas efter behov. Köket är fullt utrustat med induktionshäll med inbyggd fläkt, ugn och en kombinerad ugn/micro i arbetshöjd. Ljusa beiga köksluckor, en bänkskiva i kompositsten och kvalitativa vitvaror gör det både funktionellt och estetiskt tilltalande.
Nya tider skapar nya möjligheter. Du kanske går i försäljningstankar, eller så funderar du på vad din bostad är värd. Oavsett om du har planer på att sälja din bostad eller bara är nyfiken på värdet kan du ta hjälp av våra mäklare. Vi värderar ditt hus, din lägenhet, sommarstuga eller fastighet. Antingen hemma hos dig eller digitalt. Fyll i formuläret så kontaktar vi dig för ett förutsättningslöst möte.
Fyll i formuläretNya tider skapar nya möjligheter. Du kanske går i försäljningstankar, eller så funderar du på vad din bostad är värd. Oavsett om du har planer på att sälja din bostad eller bara är nyfiken på värdet kan du ta hjälp av våra mäklare. Vi värderar ditt hus, din lägenhet, sommarstuga eller fastighet. Antingen hemma hos dig eller digitalt. Klicka på länken och fyll i formuläret så kontaktar vi dig för ett förutsättningslöst möte.
Värdering av din bostad