Kungsholmen - Stadshagen, Stockholm

Sankt Göransgatan 143F, 1204

Såld

Kungsholmen - Stadshagen, Stockholm

Sankt Göransgatan 143F, 1204

Slutpris: 2 995 000 kr

Nästa visning
calendar icon måndag 12 januari 17:30 - 18:00
Visa projekt

Hållbart boende i Brf Gourmet på Kungsholmen – Modern etta med tillgång till terrass, gym och pool!

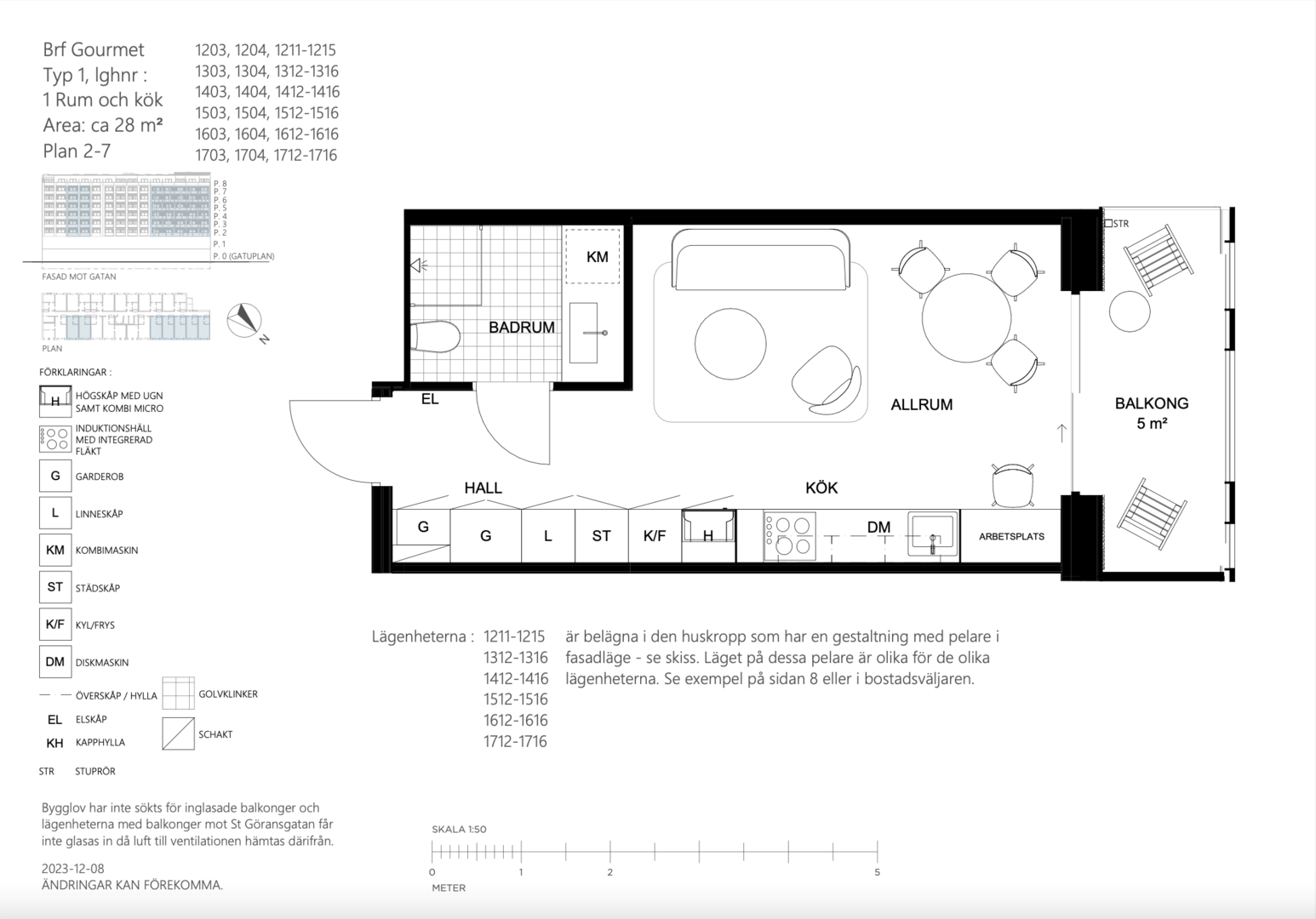
Välkommen till denna fantastiska etta på 28 kvm – en perfekt planerad bostad för dig som söker ett stiligt, funktionellt och hållbart boende. Lägenheten är belägen i Brf Gourmet, ett unikt boende i hjärtat av Kungsholmen, där hållbarhet och modern design möts. Här möts du av en ljus och luftig atmosfär där varje detalj har valts med omsorg för att skapa en harmonisk och inbjudande miljö. Lägenheten har ett enhetligt parkettgolvet i ek som löper genom hela bostaden och vackra vitlaserade träväggar, vilket ger ett ljust och stilrent intryck. Här flödar ljuset in genom stora fönster från tak till golv, vilket gör hela lägenheten ljus och välkomnande.

Bostaden erbjuder en välplanerad och funktionell layout med bra förvaringsmöjligheter. Direkt vid entrén finns garderober i hallen för effektiv förvaring. Allrummet bildar en öppen och social yta, här finns plats för både matbord och säng, vilket gör att utrymmet kan anpassas efter behov. Köket är fullt utrustat med induktionshäll med inbyggd fläkt, ugn och en kombinerad ugn/micro i arbetshöjd. Ljusa beiga köksluckor, en bänkskiva i kompositsten och kvalitativa vitvaror gör det både funktionellt och estetiskt tilltalande. LED-belysning under överskåpen ger ett behagligt ljus och skapar en mysig stämning.Badrummet är både elegant och funktionellt, med hållbara materialval som ett handfat i träkomposit och en praktisk kombimaskin för tvätt och tork. En fondvägg i havsblått, veckat kakel och stiliga LED-belysningar skapar en exklusiv känsla.

Denna lägenhet är mer än bara ett hem – det är en del av ett exklusivt boende med unika faciliteter och en livsstil utöver det vanliga. Bara 10 meter från din bostadsrättsförenings egen takterrass, som erbjuder en spektakulär utsikt över hela staden, hittar du en exklusiv pool och fitnessanläggning som endast är tillgänglig för medlemmar i Greenhouse Sthlm. Här får du fritt medlemskap hela 2025, vilket ger dig tillgång till förstklassiga träningsmöjligheter, avkoppling och utsikt i världsklass.

I Brf Gourmet bor du i en snyggt designad bostad som ger dig tillgång till hotell-liknande resurser i fastigheten. Här finns allt du kan önska dig: badrocksavstånd till pool, bastu, gym och solterrass med milsvid utsikt. Dessutom erbjuds conciergeservice och en av stans bästa restauranger, driven av en krögare i världsklass. När du är bortrest finns en uthyrningstjänst som gör det enkelt att hyra ut ditt hem och få en extra inkomst.

Den nya härliga innergården med utegym, utomhuskök, pergola, odlingslotter, gräsmatta, boulebana och mycket mer ger dig ännu fler möjligheter att njuta av livet och koppla av i din närmiljö.

Det här är ett unikt livsstilsboende mitt på Kungsholmen, där du har stadens puls på gångavstånd samtidigt som du kan njuta av lugnet. T-bana Stadshagen ligger precis utanför porten och tar dig till T-centralen på bara 4 minuter, vilket gör det enkelt att ta sig till hela Stockholms utbud av kultur, shopping och nöjen. I området finns även ett brett utbud av restauranger, caféer och grönområden, vilket gör det till en perfekt plats för både arbete och fritid.

Här får du mer än vad du kan förvänta dig av en bostad – ett hem där komfort, funktion och en exklusiv livsstil möts på bästa möjliga sätt.

Se liknande bostäder i Brf Gourmets bostadsväljare.

Bostadsväljaren mot gatan

Bostadsväljaren mot gården

Jonatan Werner
Ansvarig mäklare

Jonatan Werner

Fastighetsmäklare Fri värdering Läs mer om Jonatan

Planritning

previous slide
next slide
Planlösning från Sankt Göransgatan 143F, 1204, Såld i Kungsholmen - Stadshagen, Stockholm
bg

Ska vi ses hemma hos dig?

Nya tider skapar nya möjligheter. Du kanske går i försäljningstankar, eller så funderar du på vad din bostad är värd. Oavsett om du har planer på att sälja din bostad eller bara är nyfiken på värdet kan du ta hjälp av våra mäklare. Vi värderar ditt hus, din lägenhet, sommarstuga eller fastighet. Antingen hemma hos dig eller digitalt. Klicka på länken och fyll i formuläret så kontaktar vi dig för ett förutsättningslöst möte.

Värdering av din bostad