Kommande bostad

Hasseludden, Nacka

Huldrevägen 19

Hasseludden, Nacka

Huldrevägen 19

price tag icon Pris
Pris enl ök
Bostadstyp
Friliggande villa
rooms and are icon Antal rum
6 rum
area icon Boarea
156 m2
area icon Tomtarea
1 369 m2
calendar icon Byggnadsår
1997
Huldrevägen 19

Modern enplansvilla med pool, nybyggt attefallshus och högt solläge

Modern enplansvilla med pool, nybyggt attefallshus och högt solläge

Huldrevägen 19 – 181 m² totalyta inklusive attefallshus, 1 369 m² tomt

På en höjd, mitt i en grönskande villaidyll, reser sig denna ståtliga och ljusfyllda villa från 1997 – med nybyggt attefallshus (2017), pool och sol från morgon till kväll. Här bor ni med vacker utsikt över trädtopparna, generösa sällskapsytor och en planlösning som kombinerar funktion, design och trivsel i perfekt balans.

Det stora vardagsrummet bjuder på imponerande rymd med takhöjd upp till nock, stora fönsterpartier och naturligt ljus i varje vrå. Här möts familjen kring braskaminen, och de öppna ytorna knyter samman vardagsrum, matplats och kök i en social helhet. Från vardagsrummet tar man sig ut till ett rymligt trädäck med staket, där solen följer er hela dagen. Här väntar pool, gräsmatta och insynsskyddad trädgård – en oas för både barn och vuxna.

Villan erbjuder upp till fem sovrum, två badrum, tvättstuga nära till hands från groventré, och frånluftsvärmepump för bekväm och energieffektiv vardag. Det finns även oisolerade vindsutrymmen till höger och vänster om vardagsrums utrymmet.

På tomten finns även ett nybyggt attefallshus (lösvirke) – stilrent inrett med kök/allrum, sovrum och badrum med dusch. Med eget trädäck och en avskild gångväg från huvudbyggnaden är detta det perfekta gäst- eller uthyrningsboendet.

- Laddstolpe finns för elbilar
- Gott om parkering för åtminstone 3 bilar

Läget är lika praktiskt som naturnära – gångavstånd till förskolor, skolor, centrum och kommunikationer, där både båt och buss tar er snabbt in till staden. I närområdet finns småbåtshamn, Trollsjön (Vittjärn), Kvarnsjön och Myrsjön, samt Yasuragi och Skepparholmen Spa – allt inom promenadavstånd. Endast 130 meter fågelvägen till vattnet.

Ett hem där rymd, komfort och natur möts i harmoni – välkommen hem till Huldrevägen 19!

Intresseanmälan
Jesper Lindgren
Ansvarig mäklare

Jesper Lindgren

Fastighetsmäklare, franchisetagare Fri värdering Läs mer om Jesper

Bostad

Ekonomi

Område

Dokument och länkar

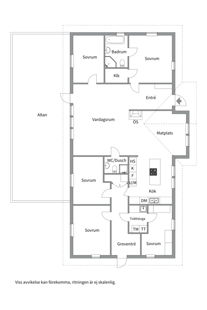
Planlösning från Huldrevägen 19, Kommande i Hasseludden, Nacka
Intresseanmälan

Anmäl dig här

Du som är intresserad av den här bostaden får gärna lämna dina kontaktuppgifter här. Då kan jag höra av mig till dig med uppdateringar kring bostaden, och du riskerar inte att missa nåt.

Räkna ut boendekostnad

bg

Ska vi ses hemma hos dig?

Nya tider skapar nya möjligheter. Du kanske går i försäljningstankar, eller så funderar du på vad din bostad är värd. Oavsett om du har planer på att sälja din bostad eller bara är nyfiken på värdet kan du ta hjälp av våra mäklare. Vi värderar ditt hus, din lägenhet, sommarstuga eller fastighet. Antingen hemma hos dig eller digitalt. Klicka på länken och fyll i formuläret så kontaktar vi dig för ett förutsättningslöst möte.

Värdering av din bostad