Till salu
Besiktigad

Ektorp, Nacka

Gamla Landsvägen 101

Ektorp, Nacka

Gamla Landsvägen 101

Nästa visning
calendar icon söndag 11 januari 13:45 - 14:30
calendar icon Nästa visning
söndag 11 januari 13:45 - 14:30
price tag icon Pris
5 995 000 kr
Bostadstyp
Parhus
rooms and are icon Antal rum
4 rum
area icon Boarea
89 m2
area icon Biarea
20 m2
area icon Tomtarea
367 m2
calendar icon Byggnadsår
1988
Gamla Landsvägen 101

Bo bekvämt – nära till allt!

• 109 kvm i två plan med friköpt tomt och terrasser
• Garage och egen parkeringsplats
• Nära natur, skolor, kommunikationer och service
• Låg driftkostnad och bra totalekonomi

Det optimala parhuset med närhet till allt! Det är sällan dessa hus kommer ut på marknaden – så passa på! Här bor du extremt centralt i Nacka, med allt på nära håll. Bara 10 minuter från innerstan med bil, 20 minuter med buss eller 30 minuter med elcykel.

Välplanerade kvadratmeter med flexibel planlösning

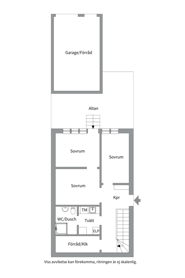
Husets totala yta på 109 kvm är fördelad på två plan. På entréplanet möts du av en luftig hall som leder vidare till två sovrum, varav det ena har fin kontakt med framsidans altan – perfekt som master bedroom. Här finns också ett praktiskt badrum och tvättstuga, en klädkammare med goda förvaringsmöjligheter samt ett extra rum – ett flexibelt utrymme som lika gärna kan bli hemmakontor, gäst- eller hobbyrum.

På övervåningen öppnar hemmet upp sig i en ljus och social planlösning där kök och vardagsrum möts. Det mysiga köket är en naturlig samlingspunkt för familjen. Vardagsrummet har plats för både stor matplats och soffgrupp – perfekt för både vardag och fest. Ljuset flödar in från flera väderstreck, vilket skapar en härlig rymd. Härifrån har du utsikt mot lummig grönska och vintertid ett vackert snölandskap.

Bekvämt boende med garage och parkering

Till huset hör ett garage som lämpar sig väl för bil, cyklar eller som extra förvaringsutrymme. Framför garaget finns dessutom en egen parkeringsplats, och det finns möjlighet att utöka till plats för två bilar.

Energieffektivt boende

Totalekonomin för att bo i detta hus är mycket bra tack vare låga driftskostnader. Huset är utrustat med solceller och en luftvärmepump som både värmer och kyler, vilket bidrar till en energieffektiv och bekväm boendemiljö året runt.

Två uteplatser – sol hela dagen

Huset erbjuder två härliga uteplatser. På framsidan finns en solig terrass där du kan njuta från morgon till sen eftermiddag. Baksidans mer skyddade uteplats ger skön skugga mitt på dagen och kvällssol senare – perfekt för varma sommardagar.

Tomten på 367 kvm är friköpt och lagom stor för både lek, avkoppling och odling. En dröm för dig som vill ha grönt omkring dig, men ändå inte alltför stort att sköta.

Naturen som granne – året om

Läget intill Nyckelviken och den närliggande Skuruparken ger dig tillgång till vacker natur och möjligheter till motion och återhämtning året runt. Bastusjön, med sin lilla sandstrand, är idealisk för sommarbad och förvandlas vintertid till en naturlig isbana för skridskoåkning.

Lite längre bort väntar idylliska klippbad vid Brukshundsklubben – en sommarfavorit. Inom gångavstånd når du även Långsjöns naturreservat med promenadstigar och bad. För hela familjen ligger Cirkusparken nära, med stora grönytor för lek, träning och picknick. Även Nackareservatet finns inom räckhåll för dig som vill upptäcka ännu mer natur, löpspår och friluftsliv.

Familjevänligt och nära till allt

Området erbjuder ett stort utbud av förskolor och skolor inom bekvämt gångavstånd, vilket gör vardagen smidig för barnfamiljen. Ektorp centrum ligger nära med två mataffärer, caféer, restauranger och vårdcentral. Bra bussförbindelser tar dig snabbt in till Slussen.

Inom gångavstånd finns också Olle Nymans ateljé, där du sommartid kan njuta av en kvalitetsmiddag eller god lunch i underbart vacker miljö.

Och inte minst – huset ligger på rätt sida om Skurubron, vilket ger smidig tillgång till både innerstan och resten av Nacka!

Visningar

Välkommen på öppen visning! söndag 11 januari, 13:45 - 14:30
Välkommen på öppen visning! måndag 12 januari, 17:45 - 18:15
Oscar Wittberg
Ansvarig mäklare

Oscar Wittberg

Fastighetsmäklare Boka tid i min kalender Läs mer om Oscar

Bostad

Ekonomi

Område

Dokument och länkar

previous slide
next slide
Planlösning från Gamla Landsvägen 101, Till salu i Ektorp, Nacka
Planlösning från Gamla Landsvägen 101, Till salu i Ektorp, Nacka
Intresseanmälan

Anmäl dig här

Du som är intresserad av den här bostaden får gärna lämna dina kontaktuppgifter här. Då kan jag höra av mig till dig med uppdateringar kring bostaden, och du riskerar inte att missa nåt.

Räkna ut boendekostnad

bg

Ska vi ses hemma hos dig?

Nya tider skapar nya möjligheter. Du kanske går i försäljningstankar, eller så funderar du på vad din bostad är värd. Oavsett om du har planer på att sälja din bostad eller bara är nyfiken på värdet kan du ta hjälp av våra mäklare. Vi värderar ditt hus, din lägenhet, sommarstuga eller fastighet. Antingen hemma hos dig eller digitalt. Klicka på länken och fyll i formuläret så kontaktar vi dig för ett förutsättningslöst möte.

Värdering av din bostad