Logga in
Välkommen till Widerlöv. Logga in för att fortsätta.
Det tar bara några sekunder.
- Starta BankID-appen på din mobil eller surfplatta
- Klicka på QR-koden
- Skanna QR-koden nedan, med BankID-appen
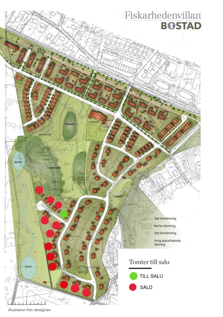
Ta tillfället i akt att köpa en fantastisk tomt med fritt läge belägen på barnvänlig återvändsgata! Tomten säljs tillsammans med Fiskarhedenvillan i Södra Gunsta! Det här är en av de tre sista tomterna i området, med ett soligt läge och ca 896 kvm. Tomten är placerad på lugn återvändsgata! Ledningar för VA, fiber och el är draget till tomtgräns. Köparen betalar anslutningsavgiften.
Nu finns chansen att köpa någon av de sista tre tomterna för att bygga drömvillan tillsammans med Fiskarhedenvillan. Tomtstorlekarna varierar mellan 896-1137 kvm (se fler alternativt under bilder), varav samtliga ligger med fritt läge – omgivna av äng/åker och skog. Intill tomterna i väster har kommunen anlagt en stor vacker naturpark med dammar, lekpark och fina promenadstråk som ger möjlighet till avkoppling för liten som stor. På gångavstånd från tomterna finns en nybyggd förskola.
Gunsta har länge varit ett populärt samhälle att bo i. Strax utanför stan med nära till både skog och natur samt enkel kommunikation in till Uppsala. Med bil når du E4:an på bara några minuter och åt motsatt håll ligger Fjällnora som är ett populärt utflyktsmål, med badstrand och äventyrsbana på sommaren och skridskoåkning på sjön på vintern. I Gunsta finns förutom trevlig restaurang, en populär trädgårdshandel och även hållplats för Lennakatten som tuffar förbi på sommarhalvåret.
Framtiden för området är ljusare nu än någonsin när Uppsala kommun planerar för ett nytt stadsdelscentrum med service och butiker i Södra Gunsta - Här kommer det finnas strövområden i både torg- och naturmiljö. Kommunen planerar för flera nya förskolor samt en ny grundskola med idrottshall. Områdets naturnära karaktär ska bevaras. https://bygg.uppsala.se/planerade-omraden/sodra-gunsta/om-sodra-gunsta/
Som köpare ingår du ett avtal att tillsammans med Fiskarhedenvillan bygga det hus som du drömmer om, inom de ramar som detaljplanen tillåter. Inspireras gärna av deras hus här: https://fiskarhedenvillan.se/valj-ditt-hus/husmodeller/
Varmt välkommen med din intresseanmälan!
Nya tider skapar nya möjligheter. Du kanske går i försäljningstankar, eller så funderar du på vad din bostad är värd. Oavsett om du har planer på att sälja din bostad eller bara är nyfiken på värdet kan du ta hjälp av våra mäklare. Vi värderar ditt hus, din lägenhet, sommarstuga eller fastighet. Antingen hemma hos dig eller digitalt. Fyll i formuläret så kontaktar vi dig för ett förutsättningslöst möte.
Fyll i formuläretDu som är intresserad av den här bostaden får gärna lämna dina kontaktuppgifter här. Då kan jag höra av mig till dig med uppdateringar kring bostaden, och du riskerar inte att missa nåt.
Nya tider skapar nya möjligheter. Du kanske går i försäljningstankar, eller så funderar du på vad din bostad är värd. Oavsett om du har planer på att sälja din bostad eller bara är nyfiken på värdet kan du ta hjälp av våra mäklare. Vi värderar ditt hus, din lägenhet, sommarstuga eller fastighet. Antingen hemma hos dig eller digitalt. Klicka på länken och fyll i formuläret så kontaktar vi dig för ett förutsättningslöst möte.
Värdering av din bostad