Logga in
Välkommen till Widerlöv. Logga in för att fortsätta.
Det tar bara några sekunder.
- Starta BankID-appen på din mobil eller surfplatta
- Klicka på QR-koden
- Skanna QR-koden nedan, med BankID-appen
Fantastiskt belägen villa med sjöutsikt och naturmark på två sidor. Från den soliga altanen och merparten av rummen har man en underbar horisontvy, solnedgång och milsvid utsikt över Stockholms inlopp, Lidingö och hela vägen bort mot Vaxholm. Här njuter man av ett ständigt skådespel av båtar som passerar och himlens skiftningar.
Läget är sist på en skaftväg är mycket privat och utan insyn. Utöver den egna vackra tomten så kan barnen leka på de omgivande klipphällarna med vacker tallskog som omger huset. Ett fint hönshus och en köksträdgård bjuder in till självhushållning.
Villan är ursprungligen från 1947 men är väl omhändertagen och uppdaterad på senare år: Bergvärme och fiber är installerat, fönsterna är nya, fasaden ommålad, dränering är omgjord, laddstation för elbil finns och köket är renoverat. Driftskostnaderna är mycket låga. Det finns två fungerande murade öppna spisar.
Hela övre plan är totalrenoverat 2020 till tre härliga sovrum och ett elegant badrum. Utsikten häruppe är bedövande vacker från alla tre rummen. Här njuter man av såväl smäktande solnedgångar som regn som smattrar på takfönsterna.
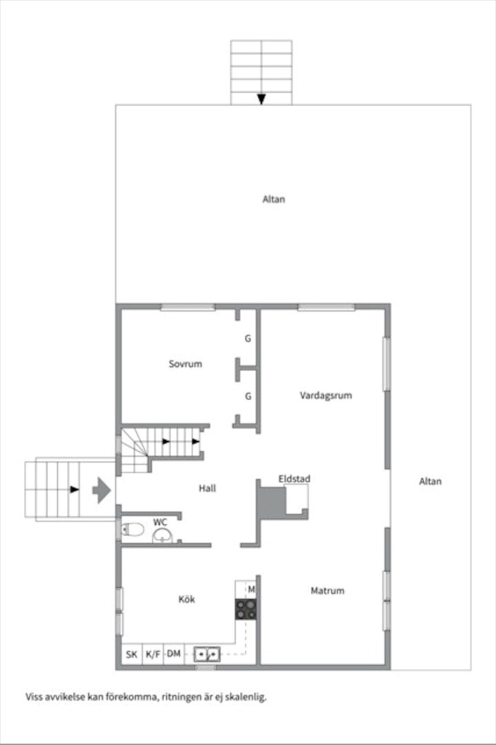
På mellanplanet återfinns stora sällskapsytor, ett fräscht kök och ytterligare ett sovrum. En trappa ner, med direkt utgång tillträdgården åt två håll, finner ytterligare ett allrum med eldstad, ett sov/ och eller arbetsrum, ett stort hobbyrum samt en praktisk grovingång och ett duschrum med bastu. Planlösningen är perfekt för en barnfamilj! Har man gäster som hälsar på så kan de få som en egen avdelning i källarplanet med dusch och allt.
Hasseludden är en fridfull miljö, nära både natur och skärgård, men med kort avstånd till kommunikationer, skolor och köpcentrum. Möjlighet till egen båtplats finns i Lövbergaviken. Här bor man nära city, men även på kort avstånd till Hasseluddens brygga och med en tydlig skärgårdskänsla.
Området erbjuder underbara promenadvägar utmed Stockholms inlopp och tre fantastiska badsjöar på kort avstånd. Villaägarföreningen har t ex en egen badbrygga i Sågsjön endast fem minuter från hemmet. Här kan man även lägga en egen liten roddbåt eller kajak man vill. Sågsjön är en underbart ren och vacker klippsjö som nyttjas året om för bad, långdistanssimning, skridskoåkning och långfärdsskidor.
Vittjärn, eller Trollan i folkmun, ligger även den bara ett par minuter från villan och är en härlig samlingsplats under sommartid. Denna når man via en genväg genom skogen, ner för backen. Trollan är omgärdad av skog, har rent vatten som blir varmt tidigt på året och håller temperaturen långt in på hösten. Området har dessutom inte mindre än två kända spa-anläggningar, Hasseluddens Yasuragi och Skepparholmen, med tillhörande restauranger och barer. Utmed denna kustremsa finns underbara promenad och joggingspår.
Tre förskolor; kommunala Rensättra förskola (bara några hundra meter från ytterdörren via en genväg), och Kummelnäs förskola samt privata Backebo förskola finns på promenadavstånd. Grundskolor finns i närheten, inte minst populära Myrsjöskolan (f-9) och Sågtorpsskolan som båda nås på kort cykelavstånd via trygga cykelvägar.
I närbelägna Orminge Centrum erbjuds all tänkbar service; flera mataffärer, vårdcentral, bibliotek, apotek, systembolag, restauranger och butiker. Och ett bageri i mästarklass; Lindebergs bageri som äntligen flyttat till större lokaler.
Kommunikationerna är goda. Från Sergelvägen går det utmärkt att promenera eller ta buss 417 från hållplats Myrsjön. Går man aningen längre, till hållplats Korset, går direktbussarna till city med mycket hög turtäthet. Man kan antingen åka till Slussen eller med direktbuss till Cityterminalen. Flera infartsparkeringar finns i närheten. Det går båttrafik in till flera bryggor i stan från Hasseluddens brygga som ligger på promenadavstånd. Ett oerhört mysigt sätt att åka till stan på.
Det finns mycket goda sport- och idrottsmöjligheter i närheten. En av Nackas största sporthallar, Myrsjö sporthall, ligger mycket nära, men även andra idrotter erbjuds; fotboll, badminton, tennis, bordtennis, innebandy, handboll, basket, fotboll, gymnastik mm. En simhall planeras också i Myrsjöområdet. Det finns flera båtklubbar samt Velamsunds naturreservat som erbjuder ridning, vandring, skidåkning i anslutning till Värmdös vidsträckta natur.
Nya tider skapar nya möjligheter. Du kanske går i försäljningstankar, eller så funderar du på vad din bostad är värd. Oavsett om du har planer på att sälja din bostad eller bara är nyfiken på värdet kan du ta hjälp av våra mäklare. Vi värderar ditt hus, din lägenhet, sommarstuga eller fastighet. Antingen hemma hos dig eller digitalt. Fyll i formuläret så kontaktar vi dig för ett förutsättningslöst möte.
Fyll i formuläretNya tider skapar nya möjligheter. Du kanske går i försäljningstankar, eller så funderar du på vad din bostad är värd. Oavsett om du har planer på att sälja din bostad eller bara är nyfiken på värdet kan du ta hjälp av våra mäklare. Vi värderar ditt hus, din lägenhet, sommarstuga eller fastighet. Antingen hemma hos dig eller digitalt. Klicka på länken och fyll i formuläret så kontaktar vi dig för ett förutsättningslöst möte.
Värdering av din bostad