Logga in
Välkommen till Widerlöv. Logga in för att fortsätta.
Det tar bara några sekunder.
- Starta BankID-appen på din mobil eller surfplatta
- Klicka på QR-koden
- Skanna QR-koden nedan, med BankID-appen
Välplanerat och friköpt gavelradhus i 3plan med låg driftskostnad beläget i barnvänliga Östra Orminge. Få radhus i området har så mycket tomt som denna. Måste upplevas på plats!
Ett perfekt familjeboende i lugnt och insynsskyddat gavelläge med naturen som granne. Stora sovrum, bra förvaringsmöjligheter och nära till kommunikationer, skolor, butiker och natur. Huset ligger bra till på den bilfria innergården har två stora altaner med gott om plats för trädgårdsmöbler, grill och växter.
Detta friköpta gavelradhus i tre plan har den optimala disponeringen för en familj. Här finns rymliga sovrum, med plats att dela av och bygga fler, två badrum och kök med mycket arbetsyta. Rymlig uteplats på framsidan i soligt söderläge med sol hela dagen samt en balkong med lummig utsikt med tidig morgonsol och kvällssol. Samt en generös altan på baksidan i skyddat läge högt upp där du kan spendera fantastiska kvällar sent in på hösten och även tidig vår.
Välkommen att ringa mäklaren för att boka en visning och uppleva detta fantastiska boende på plats!
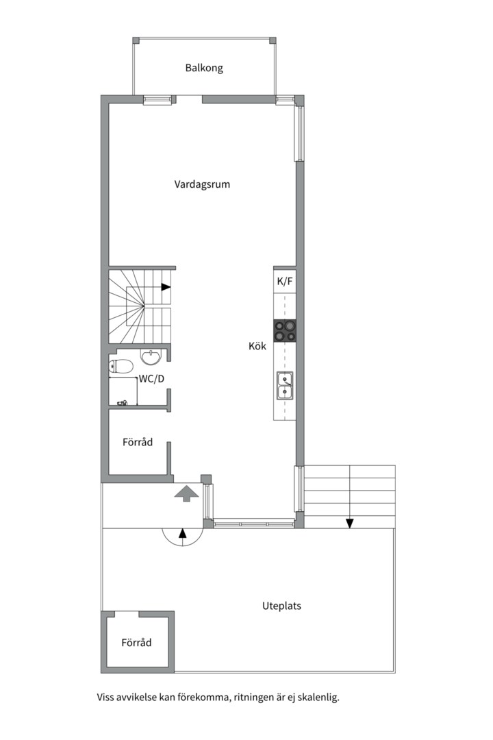
ENTRÉPLAN
Hall
Välkomnande hall med gott om plats för klädavhängning och skor.
Kök med matplats
Rymligt kök med bra skåpförvaring och arbetsytor som uppmuntrar till matlagning. Köket är utrustat med kyl och frys, spis, microvågsugn, ugn och diskmaskin. Arbetsbänk i ek, kaklad vägg och vita luckor med kromade beslag. Naturlig plats för stort matbord i burspråk med breda fönsterpartier som gör att ljuset strömmar in.
Vardagsrum
Ljust och rymligt vardagsrum med stora fönsterpartier från både väster och norr som släpper in bra med ljus. Plats för stor soffgrupp och annat möblemang. Från vardagsrummet når man den härliga balkongen som ligger fritt insynsskyddat rakt åt väster med bästa solläge. Här kommer många soliga dagar och kvällar att spenderas.
Duschrum
Badrummet är utrustat med wc, tvättställ och dusch. Kaklade väggar och våtrumsmatta på golv.
NEDRE PLAN
Allrum
Stort allrum med gott om plats för tv-hörna och från allrummet nås också en rymlig klädkammare. Allrummet kan man med enkla medel göra om till ytterligare ett sovrum. Från allrummet nås även badrum samt ett av bostadens sovrum.
Sovrum
Sovrummet på nedre plan är stort med plats för dubbelsäng, gott om klädförvaring och skrivbord. Detta är bostadens privata våningsplan. Fönster och altandörr med utgång till den mysiga baksidan. Detta rum har varit 2 sovrum och kan enkelt återställas med en vägg.
Badrum
Rymligt badrum utrustat med wc, tvättställ med kommod, spegel, badkar och tvättpelare. Våtrumsmatta på väggar och golv.
VINDSPLAN
Sovrum /Allrum
Stort och luftigt rum med härligt ljusinsläpp från fönster. Bra med plats för klädförvaring där man kan göra en klädkammare. Kan möbleras med vardagsrums möbler eller en stor dubbelsäng.
Möjlighet finns att sätta dit takfönster och takkupor för att göra 2 rum av våningen. Kan berätta mer om det och visa på visningen. Många som gjort.
Nya tider skapar nya möjligheter. Du kanske går i försäljningstankar, eller så funderar du på vad din bostad är värd. Oavsett om du har planer på att sälja din bostad eller bara är nyfiken på värdet kan du ta hjälp av våra mäklare. Vi värderar ditt hus, din lägenhet, sommarstuga eller fastighet. Antingen hemma hos dig eller digitalt. Fyll i formuläret så kontaktar vi dig för ett förutsättningslöst möte.
Fyll i formuläretNya tider skapar nya möjligheter. Du kanske går i försäljningstankar, eller så funderar du på vad din bostad är värd. Oavsett om du har planer på att sälja din bostad eller bara är nyfiken på värdet kan du ta hjälp av våra mäklare. Vi värderar ditt hus, din lägenhet, sommarstuga eller fastighet. Antingen hemma hos dig eller digitalt. Klicka på länken och fyll i formuläret så kontaktar vi dig för ett förutsättningslöst möte.
Värdering av din bostad