Nacka

Finnboda varvsväg 12A

Såld

Nacka

Finnboda varvsväg 12A

Slutpris: 6 320 000 kr

Välkommen till denna unika och charmiga etagelägenhet på Finnboda Varvsväg 12A – ett modernt townhouse i en historisk K-märkt byggnad från 1940-talet.

- K-märkt byggnad från 1940-talet med historisk karaktär
- Stora fönster från golv till tak
- Omgjord 4:a som går att återställa till en 3:a
- Två uteplatser
- Genomgående hörnlägenhet
- Sol hela dagen
- Två badrum, varav ena med egen tvättdel med tvättmaskin och torktumlare
- Välskött förening
- Trevlig innergård och terass med sjöutsikt
- Goda parkeringsmöjligheter
- ICA Nära 30 m från huset
- Närheten till hav/natur och till city.
- Mycket goda kommunikationer (buss & SL-båt)

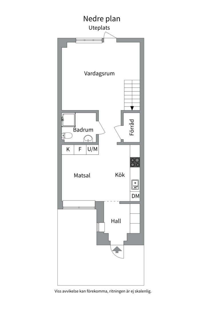
Här bor du i en ljus och luftig bostad med generös takhöjd, stora fönster från golv till tak och en smart planlösning. Ursprungligen en trerummare, men omgjord till en fyrarummare för extra funktionalitet. Lägenheten är 90,5 kvm fördelad på två plan och erbjuder två uteplatser, en vid entrén och en på baksidan. Här finns två helkaklade badrum och en genomtänkt planlösning med sociala ytor samt privata sovrum. De stora fönsterpartierna ger ett fantastiskt ljusinsläpp och förstärker känslan av rymd.

Brf Docklands är en HSB förening och ombyggnadsprojekt som bildades 2010. Fastigheten är en kulturhistoriskt värdefull industribyggnad. Innergården är en levande plats och även samlingspunkt för alla grannar under sommarhalvåret. Denna fantastiska lägenhet är placerad i den omtalade ”svetshallen” som uppfördes 1944 och som idag inrymmer 40 bostadsrätter. Till lägenheten hör ett källarförråd och gemensamma utrymmen som tvättstuga och hobbyrum med pingisbord.

Finnboda Hamn är ett populärt och expansivt område vid vattnet i Nacka, med närhet till både stadspuls och natursköna promenadstråk. Området har en spännande historia som gammalt varvsområde och präglas av en blandning av modern arkitektur och bevarade industribyggnader. Här finns caféer, restauranger, gym och matbutiker på bekvämt avstånd, och dessutom når du snabbt både Sickla Köpkvarter och Hammarby Sjöstad för ett ännu bredare utbud av service och shopping. Kommunikationerna är smidiga med SL-båt från Finnboda Kaj som tar dig till Nybrokajen på cirka femton minuter, buss 53 som går direkt till Slussen och City, samt närhet till Sickla Köpkvarter och Saltsjöbanan.

Det här är ett perfekt boende för dig som vill kombinera modern komfort med historisk charm och ett oslagbart läge nära vattnet. Välkommen på visning!

Fatos Cetinkaya
Ansvarig mäklare

Fatos Cetinkaya

Fastighetsmäklare Boka tid i min kalender Läs mer om Fatos

Planritning

previous slide
next slide
Planlösning från Finnboda varvsväg 12A, Såld i , Nacka
Planlösning från Finnboda varvsväg 12A, Såld i , Nacka
bg

Ska vi ses hemma hos dig?

Nya tider skapar nya möjligheter. Du kanske går i försäljningstankar, eller så funderar du på vad din bostad är värd. Oavsett om du har planer på att sälja din bostad eller bara är nyfiken på värdet kan du ta hjälp av våra mäklare. Vi värderar ditt hus, din lägenhet, sommarstuga eller fastighet. Antingen hemma hos dig eller digitalt. Klicka på länken och fyll i formuläret så kontaktar vi dig för ett förutsättningslöst möte.

Värdering av din bostad